Maitrise des outils CAO

Concept

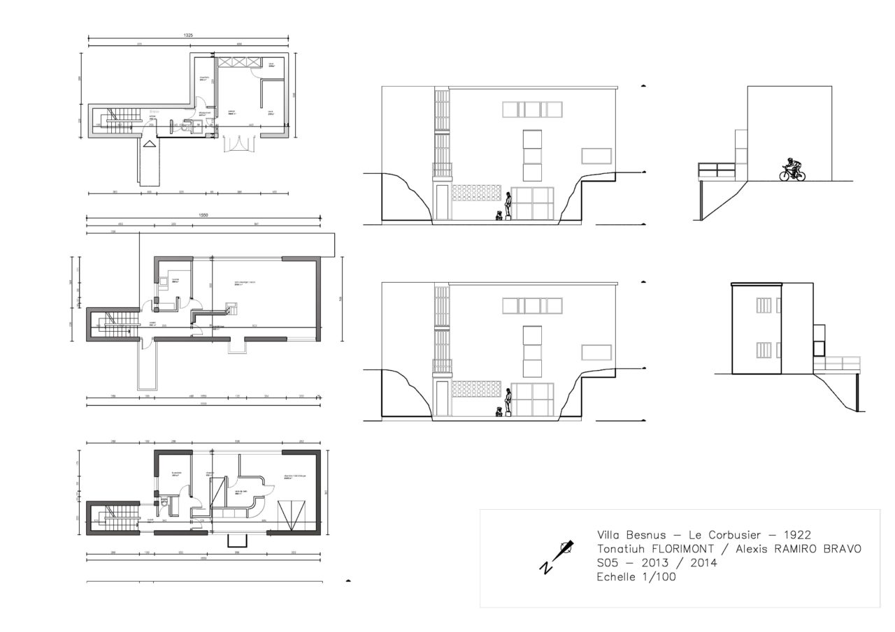
Plans divers autocad et plans texturés.

Outils CAO,  au cours de mon parcours, j’ai appris à utiliser divers outils de conception. Voici une compilation d’éléments réalisés à l’aide de ces outils qui sont aujourd’hui indispensables !

Que ce soit des plans, des coupes, des détails, on peut dire merci aux outils informatiques qui facilitent la tache.